
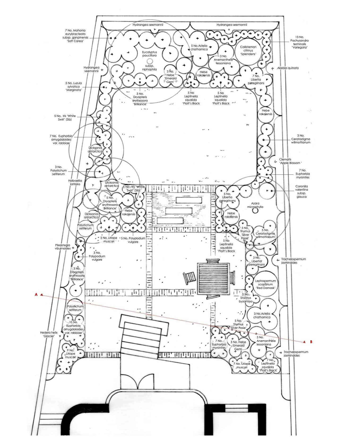
This new planting scheme for a garden in Islington is a tale of two hemispheres, on two counts. First, although it is based in North London, it incorporates a range of plants native to New Zealand, where the owners spent their childhood. Second, it also has two distinct environments: one side faces south, it is sunny and warm, with well-drained soil, while the other faces north, is in the shade, and the soil remains reliably moist.

But what can appear a challenge in garden design terms is also an opportunity to bring greater variety, while maintaining coherence by playing with shapes and textures.
New Zealand plants sometimes come across as exotic and tender. It is true that some are just about frost hardy and would be unlikely to survive the cold winters north of the Midlands. But given a sheltered spot in a city garden or on the south coast of England, plants such as the Manuka tree will feel entirely at home, and we’ve proposed one for the sunny side of this garden.
Many New Zealand natives, however, are hardy enough to withstand temperatures as low as -15Co while also being drought tolerant – two characteristics that make them a good choice for English gardens in an era of climate change. But just like most Mediterranean plants, they resent winter wet and need well-drained soil.
If proof were needed of their suitability for this country’s climate, several public gardens in England have started using New Zealand plants successfully. Regent’s Park is one of them, with the Mediterranean border in Queen Mary’s Garden brimming with New Zealand natives, including unusual-looking wire-mesh bushes such as Corokia or Sophora.

The Mediterranean garden in Kew also features numerous New Zealand plants to wonderful effect, and the Savill Garden, in Windsor Great Park, has an entire self-contained garden dedicated to New Zealand plants. Go on a sunny winter day and the beauty of New Zealand plants will be obvious: there will be few flowers at that time of year but the display of evergreen shrubs, in a variety of shapes, colours and textures is simply extraordinary.

Here, we’ve used a limited palette of plants, in drifts or small blocks, to create a contemporary atmosphere. Evergreen shrubs and perennials help provide interest year-round – both of which were part of the brief.
Forms and textures are repeated around the garden, ensuring consistency and harmony across the design as a whole, where plants with coarse leaves are offset against those with medium and fine-leaved foliage to provide variety.
Spiky plants such as Astelia and Libertia contrast with rounded ones such as Hebe and soft grasses, while loose, arching shrubs – such as Azara, with its minuscule but delightful vanilla-scented flowers – bring a gentle flow to the borders.

At the back, a Eucalyptus screens the garden from the neighbours, while evergreen climbers around the boundary walls bring a greater sense of privacy.
Bulbs planted in between perennials and around the shrubs provide further interest through the seasons. These include species tulips, which flower in late winter, and Nerine, whose pink agapanthus-like blooms come out in the autumn. And there is colour coherence and contrast too, with shades of green complemented by rusty and silvery tones.
